Vidéo de l'annonce

Maison à vendre à Paris 18Ème

599 000
60 m²
4 pièces
RÉF :
13615
599 000

Ensemble de deux lots à réunir et à rénover aux Abbesses

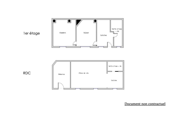
Au coeur de Montmartre, à deux pas des Abbesses tout en étant parfaitement au calme, cet ensemble donnant sur cour se compose de deux appartements et d'une remise, développant 59,44 m² (52,31 m² Carrez) répartis sur deux niveaux. L'ensemble est à rénover intégralement.
Au rez-de-chaussée, un premier appartement de 23,03 m² (22,85 m² Carrez) se compose d'un espace de vie avec coin salon, d'un coin nuit en mezzanine, d'une cuisine et d'une salle d'eau avec WC.
Il bénéficie de trois portes-fenêtres ouvrant de plain-pied sur la cour et d'une remise attenante de 6,95 m², ajoutant un réel potentiel d'extension.
Un escalier extérieur mène à une coursive d'environ 6 m2 desservant le second appartement de 29,46 m², distribué en deux pièces, une cuisine et une salle d'eau. Ce niveau est également entièrement à rénover.
Ces deux appartements ainsi que la remise peuvent être réunis pour créer un duplex, offrant une atmosphère de petite maison sur cour, ou conservés en deux unités indépendantes selon le projet de l'acquéreur.
Bien soumis au statut de copropriété.
Métro Abbesses (Ligne 12)
Contact : Fabrice +33 7 86 75 71 32
Copropriété de 12 lots - dont 12 lots habitation. (Pas de procédure en cours).
Charges annuelles : 2988.00 euros. FABRICE DERRIEN (EI) Agent Commercial - Numéro RSAC : 951 254 671 - PARIS. Afficher le téléphone

Demandez plus d'informations
à l'agence grâce à votre interlocuteur.


Consulter notre politique de confidentialité.
AGENCE Espaces Atypiques Paris Ouest - Logo
Espaces Atypiques Paris Ouest
137 boulevard Haussmann
75008 - Paris 8ème

Les photos


navigation
Les détails de l'annonce
La fiche du bien en détail

Les détails de l'annonce

Les détails de l'annonce

INFORMATIONS

  • Honoraires à la charge du vendeur
  • Bien dans une copropriété
  • Nombre de lots de la copropriété : 12
  • Montant prévisionnel, moyen, annuel, des charges de copropriété : 2 988,00 €
  • Aucune procédure en cours

Références légales

Les informations sur les risques auxquels ce bien est exposé sont disponibles sur le site Géorisques: www.georisques.gouv.fr

Caractéristiques

Chambre : 2

Chambre : 2

Les informations sur les risques auxquels ce bien est exposé sont disponibles sur le site Géorisques: www.georisques.gouv.fr

Diagnostic et Risques

439 |20
20
Dpe réalisé après le 01 juillet 2021
Logement à consommation énergétique excessive