Vidéo de l'annonce

Maison à vendre à Cannes

1 950 000
200 m²
4 pièces
RÉF :
CAN250164
1 950 000

Maison de Ville à Rénover – CANNES CENTRE / SUQUET

Rare opportunité en plein cœur de Cannes.
Située dans une rue calme à deux pas du Vieux-Port et du quartier historique du Suquet, cette maison de ville à rénover offre un fort potentiel pour créer une résidence de charme sur quatre niveaux.
Le projet prévoit :
Rez-de-chaussée : Entrée et garage
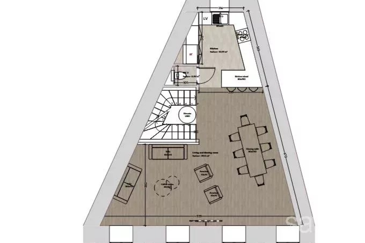
1er étage : Pièce de réception lumineuse et cuisine
2e étage : Deux chambres et une salle de bains
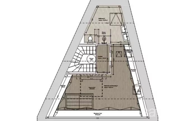
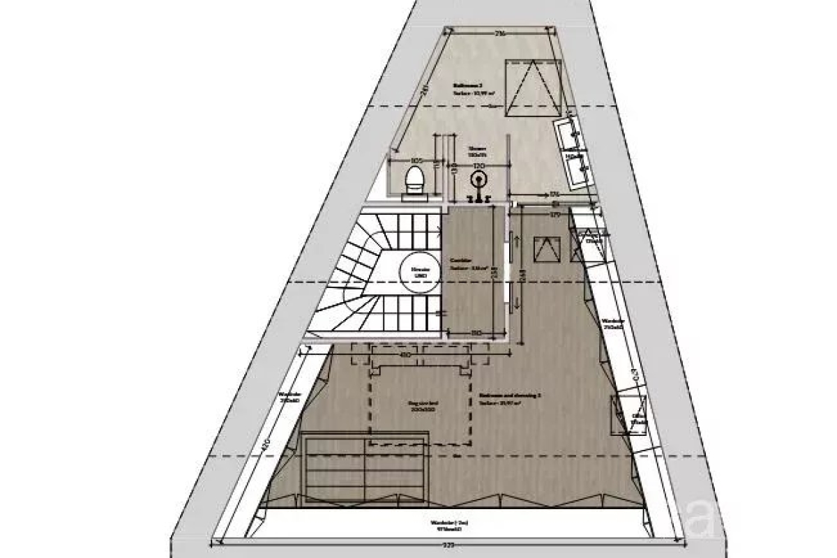
3e étage : Superbe suite parentale avec salle de bains privative
Les éléments structurels et les menuiseries sont déjà réalisés, vous laissant la liberté de personnaliser les finitions à votre goût. Permis de construire accordé pour finaliser les travaux.
Une opportunité rare à Cannes centre, idéale pour un projet résidentiel ou un investissement locatif de qualité. Afficher le téléphone

Demandez plus d'informations
à l'agence grâce à votre interlocuteur.


Consulter notre politique de confidentialité.
AGENCE Savills Cannes - Logo
Savills Cannes
7, Rue Du Commandant Andre
06400 - Cannes

Les photos


navigation
Les détails de l'annonce
La fiche du bien en détail

Les détails de l'annonce

Les détails de l'annonce

INFORMATIONS

  • Honoraires à la charge du vendeur
  • Aucune procédure en cours

Références légales

Les informations sur les risques auxquels ce bien est exposé sont disponibles sur le site Géorisques: www.georisques.gouv.fr

Caractéristiques

Les informations sur les risques auxquels ce bien est exposé sont disponibles sur le site Géorisques: www.georisques.gouv.fr

Diagnostic et Risques