Vidéo de l'annonce

Appartement à vendre à Beausoleil

790 000
131 m²
11 pièces
RÉF :
85944476
790 000

Rare à Beausoleil Moneghetti– Ensemble immobilier avec combles aménageables

Situé à l'entrée de Monaco, au cœur du quartier résidentiel des Moneghetti à Beausoleil, cet ensemble immobilier représente une opportunité rare de valorisation patrimoniale. Tous les éléments nécessaires au lancement des travaux sont d'ores et déjà validés.
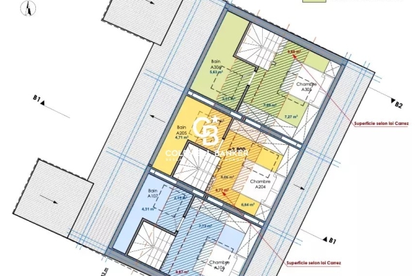
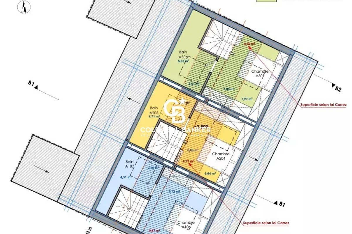
— Détails du projet : trois lots à réhabiliter, avec extension dans les combles —
État actuel (avant travaux) – Surface Loi Carrez
• Lot 1 : 2 chambres, salle de bain, WC séparé – 50,50 m² (Carrez)
• Lot 2 : séjour, 1 chambre, salle de bain, WC – 33,11 m² (Carrez)
• Lot 3 : séjour, 2 chambres, salle de bain, WC séparé – 47,50 m² (Carrez)
Total Carrez actuel : 131,11 m²
Terrasses et balcons existants : 9,74 m²
Combles à aménager (usage exclusif) : environ 35 m² de surface Carrez supplémentaire
Projet après travaux – Surfaces optimisées
• Lot 1 (avec combles intégrés) : 61,74 m² habitables + terrasse 1,50 m²
• Lot 2 (extension en volume) : 44,46 m² habitables + terrasse 6,82 m²
• Lot 3 (optimisation plafond bas + balcon) : 60,40 m² habitables + balcon 1,42 m²
Total surface habitable optimisée : 166,60 m²
Total extérieurs : 9,74 m²
Points clés du projet
• Permis de construire obtenu, incluant redistribution intérieure et ascenseur
• Suivi de chantier assuré par un architecte, avec plans validés
• Droit d'usage exclusif des combles inscrit dans l'acte de copropriété (sous condition d'entretien de la toiture par l'acquéreur)
• Autorisation d'installation d'un ascenseur jusqu'au dernier étage (budget estimatif : 70 000 à 115 000 €)
• Vue dégagée, expositions multiples, potentiel pour des prestations de qualité
Un projet adapté à différents profils :
• Résidence principale ou secondaire pour une grande famille
• Investissement locatif avec forte rentabilité, en location meublée de standing
• Résidence intergénérationnelle avec ascenseur et espaces extérieurs
Emplacement stratégique :
À proximité immédiate de Monaco, des écoles, commerces, de la gare SNCF, et des accès rapides vers le boulevard du Jardin Exotique et le centre-ville de Beausoleil.
Prix de vente HAI : 992 250 €
Honoraires TTC charge vendeur : 5 %
Les informations sur les risques auxquels ce bien est exposé sont disponibles sur le site Géorisques: Afficher le téléphone

Demandez plus d'informations
à l'agence grâce à votre interlocuteur.


Consulter notre politique de confidentialité.
AGENCE Coldwell Banker Standing Realty  - Logo
Coldwell Banker Standing Realty
11 rue Chauvain
06000 - Nice

Les photos


navigation
Les détails de l'annonce
La fiche du bien en détail

Les détails de l'annonce

Les détails de l'annonce

INFORMATIONS

  • Honoraires à la charge du vendeur
  • Bien dans une copropriété
  • Nombre de lots de la copropriété : 10
  • Aucune procédure en cours
  • Ce bien est concerné par un état des risques et pollutions (ERP)
  • Date d'établissement de l'état des risques et pollutions : 04/09/2023

Références légales

Les informations sur les risques auxquels ce bien est exposé sont disponibles sur le site Géorisques: www.georisques.gouv.fr

Caractéristiques

Chambre : 5

Chambre : 5

Les informations sur les risques auxquels ce bien est exposé sont disponibles sur le site Géorisques: www.georisques.gouv.fr

Diagnostic et Risques

504 |41
41
Dpe réalisé après le 01 juillet 2021
Logement à consommation énergétique excessive