House for sale in Las Chapas - SPAIN

3 000 000
190 m²
5 main rooms
REF :
R4183114
3 000 000

Luxury 4 bedroom Detached House for sale in Las Chapas, Andalusia

House in Las Chapas
Unique opportunity to purchase a beach side Villa in East Marbella.
The property is currently under construction and will be finished in October 2025.
Amazing sea and mountain views from the roof top solarium.
Lovely flat plot of nearly 1000 m2 with sun all day long.
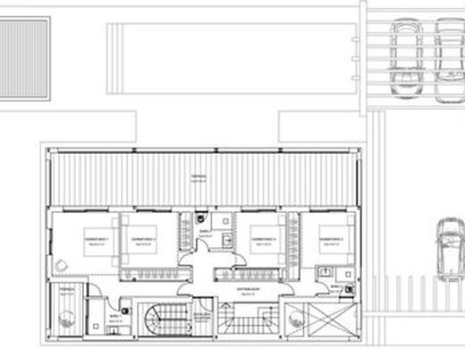
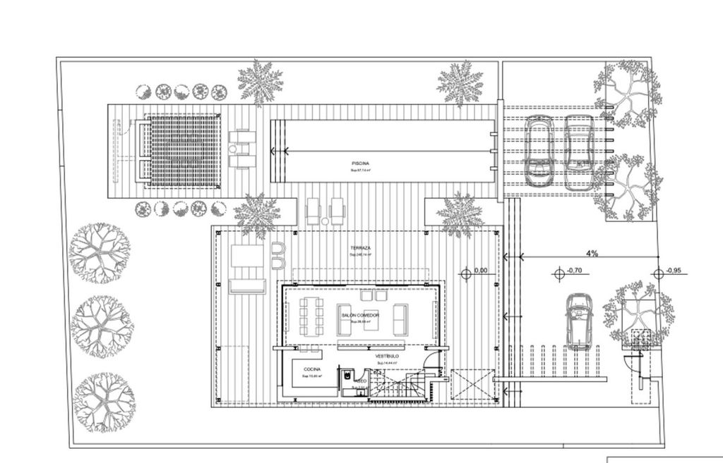
The villa is distributed over 2 levels as follows:
As you enter the villa you have a spacious lounge / dining area that leads on to the private covered terrace and pool area.
Open plan kitchen, separate laundry room and 1 toilet.
On the second level there are 4 bedrooms and 3 bathrooms.
All bedrooms have direct access to the terrace.

Ask for more information through your contact person

Consult our privacy policy.

Home Finder Marbella

- Casares

Photos of the property


Further details
Download the ad's brochure in PDF format

Further details

Further details

Legal references

Information on the risks to which this property is exposed is available on the Géorisques website : <a href="https://www.georisques.gouv.fr">www.georisques.gouv.fr</a>: www.georisques.gouv.fr

Characteristics

Information on the risks to which this property is exposed is available on the Géorisques website : <a href="https://www.georisques.gouv.fr">www.georisques.gouv.fr</a>: www.georisques.gouv.fr